Ten Acre Retreat

Set on a wide stretch of open land, our Ten Acre Retreat offers a modern interpretation of country living. Clad in dark shou sugi ban wood, the geometric form settles quietly into the landscape, concealing a calm, light-filled interior. Compact in footprint yet expansive in spirit, the home invites stillness, reflection, and an everyday connection to nature.

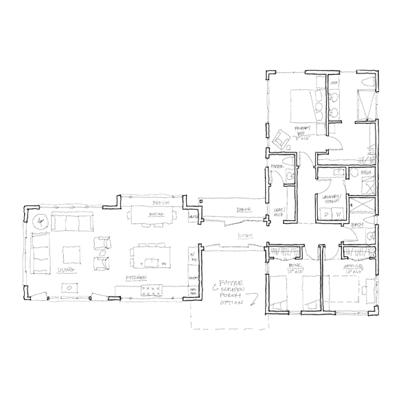
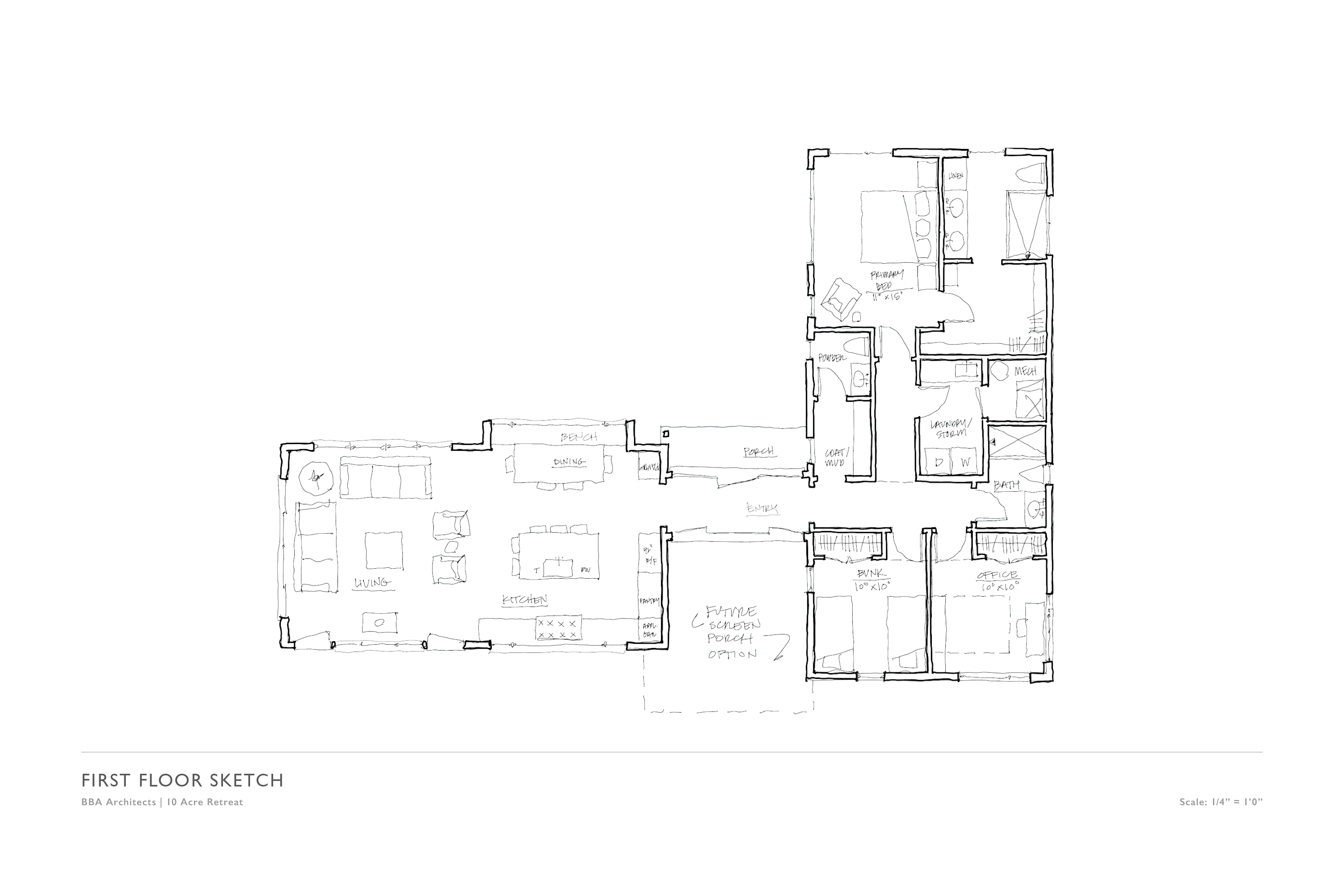
Conceived as a family retreat— a place to get away, unplug, and slow down to engage the surrounding prairies and forests of the expansive site. The design emphasizes natural ventilation, capturing cross breezes, and maximizing solar exposure in the gathering and entertaining spaces. The plan diagram is simple; two perpendicular gabled forms feature open-plan public spaces that anchor the West wing, while efficient bedrooms and bathrooms complete the East.

OVERVIEW:

Set on a wide stretch of open land, our Ten Acre Retreat offers a modern interpretation of country living.

SIZE:

2,200 sf

BBA TEAM:

Jennifer Hense, Monica Musialowski

BUILDER:

Dunes Development